高塔造粒肥都有小孔吗?

奥普乐农业2025-08-30 20:1776 阅读15 赞

1、高塔肥料是部分带孔还是全部带孔?

高塔化肥是指利用复合肥的高塔造粒工艺,生产出来的颗粒圆滑中间有小空的复合肥。高塔产品的特点及优点:①抗压强度高且水溶快。高塔造粒生产颗粒复合肥料的工艺,其产品的含水率一般在1%以下,基本上可以控制在0.5%以下, 所以产品的抗压强度特别高。②养份均匀。高塔造粒使每一颗粒养份基本上都是一致的

高塔肥料是部分带孔还是全部带孔?

2、复合肥高塔造粒和氨化造粒的区别

外观:高塔造粒复合肥比较光滑、均匀,色泽光亮,中间有清晰可见的小孔,氨化造粒复合肥色泽光亮,但颗粒呈不规则状。养分:高塔造粒复合肥的含氮量为26%左右,含磷量为15%左右,氨化造粒复合肥的含氮量超过14%,含磷量超过95%。肥效:高塔造粒复合肥容易溶解,肥效较快,氨化造粒复合肥的肥效相对较慢...

复合肥高塔造粒和氨化造粒的区别

3、俄罗斯复合肥颗粒中间带孔这个孔是怎么来的有知道的吗

由于高塔造粒工艺使复合肥颗粒形成时中心部分的物料被气体带至颗粒的表面,形成中心孔状结构,因此复合肥颗粒的中间会有孔。

俄罗斯复合肥颗粒中间带孔这个孔是怎么来的有知道的吗

4、高塔肥料和一般肥的区别

4、外观:高塔肥料的颗粒较为光滑,有时还会有小孔,易于识别;普通肥料的颗粒外观则因生产工艺的不同而有所差异。5、肥料是指用于促进植物生长和增加作物产量的物质,含有植物生长所需的养分,如氮、磷、钾等元素,以及其他微量元素和维生素。

高塔肥料和一般肥的区别

5、有些复合肥写着高塔造粒,请问老师们高塔造粒是什么意思

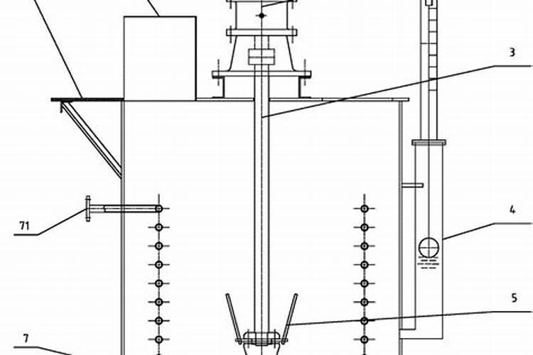
高塔造粒是生产复合肥的一种工艺,将氮磷钾水溶复混提高到高塔,再从高塔喷淋自由落体下来形成的颗粒。高塔造粒对原料要求高,需水溶性好的原料。特点是每个颗粒上有一个针眼,是从高塔上热溶的原料在下降过程中,形成过程中从外往内逐步冷却形的针眼一样的洞。

有些复合肥写着高塔造粒,请问老师们高塔造粒是什么意思

什么是“双高塔复合肥”和“普通复合肥”有什么区别呢

双高塔复合肥的生产成本通常在5000至8000万元之间,这使得它成为企业实力的象征。这种复合肥颗粒光滑,外观美观,每个颗粒的养分分布均匀。此外,一些复合肥颗粒上带有小孔,农民称之为“激光打眼”的防伪标识。双高塔复合肥具有速溶于水的特点,常用于速效肥料,特别适合追肥,对瓜果蔬菜和农作物的效果显著...

什么是“双高塔复合肥”和“普通复合肥”有什么区别呢

因为双高塔复合肥 的基础建设投资成本一般需要5000-8000万元,一般小厂生产无法生产这种复合肥, 通常也是企业实力的象征。现在“双高塔复合肥”已经成为了通用名词,在行业内很普遍……★★特征:该复合肥颗粒光滑,外观很好。每个颗粒的养分都相对均匀;复合肥颗粒一部分带小孔,被农民称作“激光打眼”的...

常见的化肥生产工艺有哪些?

物理性状优良。第四:高塔造粒 高塔造粒技术生产的肥料因其颗粒均匀、外观美观、水溶性好以及肥效迅速而受到广泛青睐。高塔造粒设备主要包括塔体(通常50米至100米或更高)、造粒设备和反应釜。这种造粒技术具有独特性,每个颗粒都有一个微小的针孔,这是其他生产工艺难以模仿的特点。

高塔复合肥的肥效长么

颗粒特性:高塔复合肥的颗粒均匀、造粒光滑,且每一个颗粒都有融化孔,这使得其融化速度快、水溶率高。这些特性有助于肥料在土壤中的快速溶解和均匀分布,从而提高肥料的利用率和延长肥效。使用效果好:由于其优良的生产工艺和颗粒特性,高塔复合肥在使用后能够显著提高作物的产量和品质。同时,由于其高效...

高塔造粒复合肥高塔造粒原理、产品特点与技术问题

产品外观光滑带针孔状,自带防伪功能,含氮量高。技术问题及解决方案: 结块问题:主要与产品含水量和包装温度有关。可通过降低含水量和控制包装温度来改善。 技术优化:采用生物酶制剂抑制肥料养分在土壤中的分解和流失,提高肥效。同时,高塔造粒工艺简化生产流程、节省能耗、提高合格率,实现清洁生产。

热点