氮肥散装装车注意事项有哪些?

奥普乐农业2025-11-20 12:3286 阅读20 赞

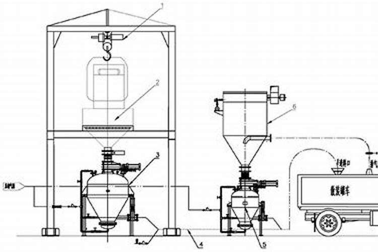
1、散装尿素是什么

散装尿素需要存放在干燥、通风的地方,避免潮湿和高温。在运输过程中,使用专门的容器或车辆进行运输,确保其不被污染和损失。

2、化肥装在马夹袋放车里几天对车有没有伤害

化肥都是酸性,或者生理酸性的。酸是会腐蚀车的。只是有时候腐蚀得比较慢,尤其天气潮湿的情况。肥料会带一些腐蚀性,会造成车漆损坏等。化学肥料,简称化肥。用化学和(或)物理方法制成的含有一种或几种农作物生长需要的营养元素的肥料。也称无机肥料,包括氮肥、磷肥、钾肥、微肥、复合肥料等,不可食...

3、液氮是液体吗,可以用普通的容器装吗

操作注意事项: 密闭操作。密闭操作,提供良好的自然通风条件。操作人员必须经过专门培训,严格遵守操作规程。建议操作人员穿防寒服,戴防寒手套。防止气体泄漏到工作场所空气中。搬运时轻装轻卸,防止钢瓶及附件破损。配备泄漏应急处理设备。储存注意事项: 储存于阴凉、通风的库房。库温不宜超过30℃。储区应备...

液氮是液体吗,可以用普通的容器装吗

4、具有开发远景的花卉专用肥料有哪些?

散装掺混肥随混随用,不宜久存。BB肥具有养分浓度高,配料灵活,针对性强,效果良好,成本低,使用方便等特点。(3)缓释肥料缓释肥料简称CRF肥,又称控释肥,是指肥料表面用低水溶性无机物或有机聚合物涂层或将肥料均匀溶入于聚合物中,形成多孔网络体系。其特点是养分释放速度与作物平衡需求基本一致,淋溶、固定、挥发损失...

具有开发远景的花卉专用肥料有哪些?

三种常用试剂使用时注意事项

灭火剂: 水、雾状水、干粉、砂土。 包装注意事项: 大包装: 塑料桶(罐),容器上部应有减压阀或通气口,容器内至少有10%余量,每桶(罐)净重不超过50公斤。 试剂包装: 塑料瓶,再单个装入塑料袋内,合装在钙塑箱内。 已赞过 已踩过< 你对这个回答的评价是? 评论 收起 为...

13公分黄栌树多少钱一棵

装车运输注意事项1、符合工程需要的黄栌树,起苗带土球,包扎之后装车运输,2米高以上的树苗可以直立装车,斜放或完全放倒,土球朝前,树梢向后,为了减少磕碰,可用支架将树冠支稳。2、大规格黄栌树起苗时,土球规格较大,直径超过60厘米的苗木只能码1层;小土球则可码放2至3层,土球之间要码紧...

掺混肥料的主要技术指标和要求是什么

加入硝铵原料的掺混肥料应在包装正面标注硝铵质量分数,并在标识中标注安全注意事项。六、增加了吨袋包装规格 BB肥的英文是Bulk ,意思是散装掺混肥料。BB肥在国外大多是现混现用、短途散装运输,但在中国目前基本上没有散装肥料。新标准第一次将1000公斤的吨袋包装列入净含量的规格,这...

药材种子的防潮储存技巧

装袋时可每袋放入1~2粒磷化铝颗粒。标签管理:贮存时标明种子名称、重量、纯度、入库时间等信息,便于追溯和管理。五、特殊天气应对回南天处理:南方回南天时,空气湿度高达80%以上,需关闭门窗并使用除湿机。若库房条件不足,可改用干燥剂或临时密封措施,但需定期检查效果。注意事项科技辅助:优先使用...

农业化肥应当在哪里验真伪

购买化肥注意事项 一是提醒广大农民在选购肥料时首先要选择正规企业的产品,并要在正规企业的销售处或合法经销单位购买。 二是购买化肥时,要查看肥料包装标识,特别要注意查看有无生产许可证、产品标准号、农业登记证号,要查看产品质量证明书或合格证,以及生产日期和批号、生产者或经销者的名称、地址,产...

热点